广东省潮州市公安消防局凤泉湖高新区消防站建设项目 调整用地规划方案公示
2020-02-21 16:49
来源:本网
【浏览字体:大 中 小】
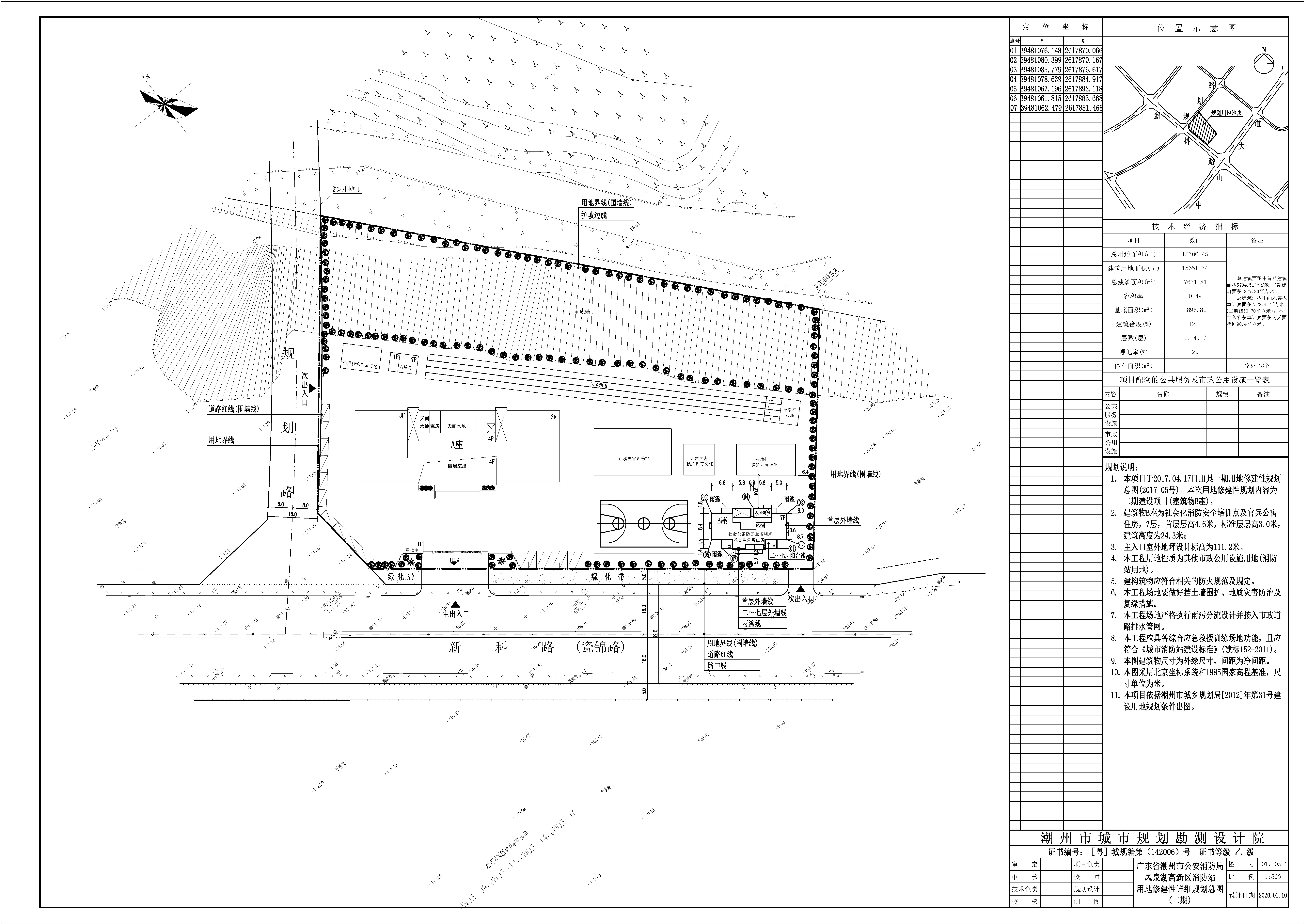
今收到广东省潮州市公安消防局提出位于中山(潮州)产业转移工业园径南分园JN04-31地块的凤泉湖高新区消防站建设项目用地修建性详细规划方案调整的申请及有关材料。依照《城乡规划法》、《行政许可法》等 有关法律法规的规定,现将规划方案予以批前公示。公示时间:2020年2月21日至2020年3月2日止。
有关单位或个人如对本规划方案有意见或建议,请在公示期内以书面形式向潮州凤泉湖高新技术产业开发区规划建设局反馈。联系电话:0768-2800306,地址:广东省潮州市S335镇道7号。




